西交13年816地信原理真题
一、解释下列名词(40分,共8小题)
1、地理信息系统 (GIS)
在计算机硬、软件系统支持下,对现实世界(资源与环境)的研究和变迁的各类空间数据及描述这些空间数据特性的属性进行采集、储存、管理、运算、分析、显示和描述的技术系统。
2.空间数据库 (Spatial Databases)
数据库是为了一定的目的,在计算机系统中以特定的结构组织、存储、管理和应用的相关 联的数据集合,空间数据库是某区域内关于一定地理要素特征的数据集合。
3.地理空间数据(Geospatial Data)
带有地理坐标的数据,包括资源、环境、经济和社会等领域的一切带有地理坐标的数据。
4.实体(Entity) 地理信息系统将不可再分的最小单元称为空间实体,如:一条断裂、一个湖泊、一个高程点等,它们在GIS中是用矢量数据点、线、面表述的。
5、数字高程模型(DEM)
用一组有序数值阵列形式表示地面高程的一种实体地面模型,是数字地形模型(DTM)的一个分支。
7.几何表示(Geometric Data)
4.空间数据基础设施(SDI)
8.属性(Attribute)
二、简要回答下列问题(5小题,每小题6分,共30分)
1.GIS与互联网、GPS、无线通讯技术和Web服务的结合引发了,包括Microsoft、Yahoo和Google等著名公司,一些商业应用,简述这些应用大致可分为哪几类?
2.人类赖以生存和繁衍的地球及其环境随着时间不断变化,探究、监测与跟踪这一影响人类生活和发展的地球环境变化一直是人类追求的目标。地理国情监测是新时期空间信息科学的重要使命。简述GIS在地理国情监测中的作用。
3.人类社会每天都可能面临各种突发事件的威胁。所有这些突发公共事件有一点是共同的,那就是在处理这些突发事件中,出现的很多问题和空间存在关联,应急制图随之而生。简述应急制图面临的主要困难。
4.卫星图像是空间数据的典型例子。为了从卫星图像中提取信息,数据处理必须在一个空间参考框架下进行。简述你对空间参考框架的理解。
5.各行业专业人员都可能遇到空间数据管理和分析问题。列举可能用到空间数据管理的不同类型的专业人员,以及一个与他们工作相关的空间查询的例子。
三、分析比较GIS中矢量数据模型、栅格数据模型的特点。(16分)
四、政府机构在网络上发布的空间框架数据有什么特点?从网络上获取空间数据应该注意哪些问题?(16分)
五、假设一幅地图刚刚完成数字化,接着进行编辑流程。阐述用基于拓扑的GIS软件包编辑该地图的过程。(16分)
六、数据库应用通过三个设计阶段来进行建模,说明数据库设计的三个步骤。(16分)
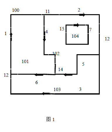
七、完成图1中面要素的数据描述。(16分)

