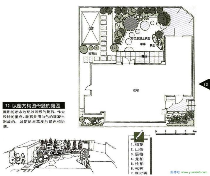
干货:风景园林考研快题范例439套 G75个庭园设计图籍(70)

本站小编 免费考研网/2018-01-14


相关话题/风景园林