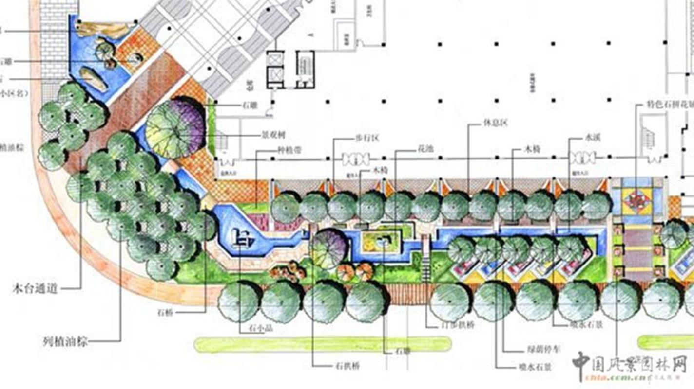
干货:风景园林考研快题范例439套 E平面精选(10)

本站小编 免费考研网/2018-01-14


相关话题/风景园林

  • 领限时大额优惠券,享本站正版考研考试资料!
    大额优惠券
    优惠券领取后72小时内有效,10万种最新考研考试考证类电子打印资料任你选。涵盖全国500余所院校考研专业课、200多种职业资格考试、1100多种经典教材,产品类型包含电子书、题库、全套资料以及视频,无论您是考研复习、考证刷题,还是考前冲刺等,不同类型的产品可满足您学习上的不同需求。 ...
    本站小编 Free壹佰分学习网 2022-09-19
  • 干货:风景园林考研快题范例439套 C北林范图
    本站小编 免费考研网 2018-01-14
  • 干货:风景园林考研快题范例439套 B部分节点
    本站小编 免费考研网 2018-01-14
  • 干货:风景园林考研快题范例439套 A绿巨人 第二部分
    本站小编 免费考研网 2018-01-10
  • 干货:风景园林考研快题范例439套 A绿巨人 第一部分
    本站小编 免费考研网 2018-01-10
  • 考研经验分享|2000字东南大学风景园林考研经验分享!
    考研经验分享|2000字东南大学风景园林考研经验分享!
    作者介绍:东大小硕学长2017级东南大学风景园林硕士研究生,以快题140分第一名成绩考入东南大学,原本科院校安徽农业大学坚持,结果都不差! 很幸运能够一战就实现自己的梦想。说起考研,大概是从大二就埋下东大的种子,当时只是憧憬,希望能够考上这所不需要理由而单纯喜欢的学校。大二也就是在正式复习之前,学好本科知识 ...
    本站小编 微信公众号 2018-01-09
  • 你还在苦恼透视不会画吗?分享一套风景园林和一套室内空间图的最实用简单的透视模板,看完即会
    风景园林专业的考生,在面临小透视时,往往显得较无助,今天编辑一组关于如何套用模板来轻松画出快题中的透视图.结合平时积累的教学经验和学生考研反映结果,我认为这是最实用的万能透视模板,任何景观空间都可以完全随意套用. 下面,把这个最核心的模板,分享给大家上面两步,基本上不存在,都是辅助线,帮助我们定位 ...
    本站小编 微信公众号 2018-01-09
  • 风景园林考研——过来人说
    风景园林考研——过来人说
    1认真上课,形成设计思维 北京林业大学刘志成老师说过:“你之所以不会快速设计,是因为你根本不会设计。” 设计作品的美与丑、雅与俗没有既定的标准,这取决于设计师和使用者的主观感受,但风景园林作为一个一级学科,对于设计方案的科学性、规范性、合理性是有明确的评价体系的。在评价考研快题时,对错 ...
    本站小编 微信公众号 2018-01-09
  • 风景园林高分快题140攻略,很多你不知道的~
    重点院校考法:(根据学员笔记整理、具体以现场课程为准)关于各个学校的风格范图,在《高分景观快题150例》上册都可以找到,大家可以拿来参考,以下景观考研院校资讯以2017年的要求为准。1.清华大学:景观要求3张A1硫酸纸,场地尺度较大。满足功能使用的同时,空间尽量设计的丰富一些。2.北京林业大学:专硕要求考专业理论 ...
    本站小编 微信公众号 2018-01-09
  • 【考研攻略】2019年风景园林考研全程指导
    1.关于学校的选择 ☆☆☆☆☆ (1)建议大家在选择学校的时候先选择城市,其实你也感觉到了环境真的很重要,所以大家如果不想考本校,那就慎重的去选择一个你理想中的城市,这个城市可以是你喜欢的也可以是景观前沿的一些城市,个人建议还是大一点的城市,机会机遇和前沿信息会跟多一些,研究生毕业以后的就业创业环境都和 ...
    本站小编 免费考研网 2018-01-09
  • 风景园林专业硕士是个什么样的学位?
    一、培养目标  风景园林硕士专业学位是与任职资格相联系的专业性学位,主要为风景园林事业相关领域培养应用性、复合型、高层次的专门人才。具体要求为:  (一)掌握中国特色社会主义基本理论,拥护党的方针政策,爱国敬业,遵纪守法,积极为我国社会主义现代化建设服务。  (二)掌握风景园林相关领域坚实的基础理论 ...
    本站小编 免费考研网 2018-01-09
  • 苏州大学风景园林设计考研学长学姐说
    1、你去年十一月冲刺的时候是怎样的心态?有没有想过放弃?答:十一月的时候已经快接近考试了,那时候也没时间和心思去想别的。就每天按照每天的计划去完成当天的任务量,可能偶尔会有那么一瞬间觉得有点累,但是从没想过要放弃,之前那么长的路都走过来了,还差这点么,反正也不差了就好好的收个尾,全身心的好好加最后一次 ...
    本站小编 免费考研网 2018-01-09
  • 北方地区全年绿地养护管理要点——风景园林部落内部珍藏
    本文内容选自《城市绿地养护管理实用技术手册》,是谢峰军先生在全国园林绿化养护管理高级研修班(三期)的主讲内容,为风景园林部落的内部珍藏讲义,现整理出来与君共享!★ 一月份绿化养护工作1、修剪树木、整理树形落叶树:本着去弱留强的原则整理树形,及时疏剪掉密枝、枯死枝、病虫枝等。松柏类:只剪干枯枝、折损枝、 ...
    本站小编 微信公众号 2018-01-09
  • 【爱考宝典】风景园林备考指南
    一、走进风景园林硕士(一)风景园林硕士是什么? 风景园林硕士专业学位的英文名称为Master of Landscape Architecture,简称MLA。 风景园林硕士专业学位是与风景园林事业相关行业任职资格相联系的专业性学位,具有特定的职业背景,主要为风景园林事业相关行业培养应用性、复合型专门人才。风景园林硕士专业学位获 ...
    本站小编 微信公众号 2018-01-09
  • 风景园林 | 华元院2018风园快题精选50张,需要抄绘、学习的同学收藏
    图片均来自华元院景观方案CD班同学,非常感谢这些同学给大家提供参考学习,由于人数众多,就不一一标注作者信息了 。前方多图预警,建议wifi查看,土豪随意 彩色表现 ...
    本站小编 免费考研网 2018-01-09
  • 【爱考宝典】风景园林专业硕士经验
    先说我的成绩:英语二72 政治67 快题设计128 理论122,单看成绩就很明显我的优势并不是专业课而是公共基础课,我的英语让我占了很大的便宜,但是呢我是没有过六级的,我的四级成绩是444,所以考研英语和四六级关系确实不大,至少在我看来是的。 在介绍下我的背景,我的本科时学的园艺(跟风景园林没有半毛 ...
    本站小编 微信公众号 2018-01-09