10年笔试参考答案
建筑设计原理部分:
1.名词解释:
1.防烟楼梯间:在每层楼梯间和主体建筑之间设置有专用防烟设施,能达到防烟目的的楼梯间。是用建筑构件分隔,能防止烟和热气进入的,在楼梯间入口处设有防烟前室,或设有专供排烟用的阳台、凹廊等,且通向前室和楼梯间的门均为乙级防火门的楼梯间。
(本题题目来源为工大的公建原理样卷,实际为防火规范内容。)
2.共享空间:“共享”指一种独特的行为方式,是一种心情。现代人群的“共享”主要指人与人的交往及人对客体的观照(交往和交流),即同时具有行为与思维的共享两种特征。以“共享”为场所特征的空间即可称为共享空间。共享空间应该具有两方面性质,一是场所的共享行为特征,二是场所界面的表情特征,两者共同定义空间氛围。这种空间的基本特点归纳为(1) 根据人的心理需要,创造相应的空间环境(2) 室内外结合,自然与人工相结合。(3) 共性中有个性。(4)空间与时间的变化,动静结合。(5) 宏伟与亲切相结合。(本题为09年规划部分的名词解释题,出自环境心理学)
3.韵律:韵律诗一种以具有条理性、重复性和连续性为特征的美的形式。韵律美有几种不同的类型:1.连续的韵律;2.渐变的韵律;3.起伏的韵律;4.交错的韵律。借助韵律,既可以加强整体的统一性,又可以求得丰富多彩的变化。(本题为建筑形式美的内容,答案出自空间组合论)
4.容积率:也称建筑毛密度,是每公顷居住区用地上拥有的各类建筑的建筑面积(平方米/HA)或以居住区总建筑面积(万平方米)与居住区用地(万平方米)的比值表示。(出自城市规划规范)
5.场所精神:场所就是由自然环境和人造环境结合的有意义的整体。这个整体反映了在特定地段中人们的生活方式和自然的环境特征.“ 具有特殊风格及明确特征的空间”。场所是具有清晰特性的空间, 是由具体现象组成的生活世界. 场所是空间这个“形式”背后的“内容”。各种建筑在满足人民所需要的物质功能的同时也在创造多种多样的意境,履行它的精神功能的职责。某些建筑甚至十分突出强调这种精神功能,产生所谓精神场所。(本题直接来源出自工大公建原理样卷,实际来源为建筑设计中的环境心理学内容。)
2.默图题:
1.密斯德国馆平面图简图。

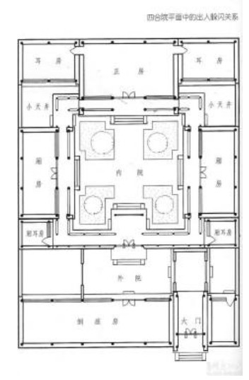
2.北京四合院平面图简图。

3.流水别墅透视图。

3.简答:(要求辅以简图说明)
1.简述对比手法在建筑中的常见表现形态。
答: 建筑功能和技术赋予建筑以各种形式上的差异性。对比指的是要素之间的显着差异。对比可以借彼此之间的烘托陪衬来突出各自的特点以求得变化。对比的内容一般有体量之间、线型之间、虚实之间、质感之间以及色彩冷暖浓淡之间的对比灯。简图略。(本题出自公共建筑的造型艺术形式美部分,答案部分来自公建原理P82)
2.结合实例分析公共建筑设计中的空间组合方式。
答:公共建筑的空间组合方式有:
分隔性的空间组合:分隔性空间组合的特点是以交通空间为联系手段,组织各类房间,常称之为“走道式”建筑布局。走道式布置方式常用的有两种:意识走道在中间,联系两侧的房间,成为内廊式,二是走到位于一侧,联系单面的房间,成为外廊式。
观展类公共建筑:为了满足参观路线要求 ,在空间组合上多要求有一定的连续性。这种类型的空间布局,基于各种因素的影响,可归纳为五种基本形式:串联的空间组合形式、放射方式的空间组合形式、串联兼通道的空间组合形式、兼有放射和串联的空间组合形式、综合性大厅的空间组合形式。
观演性的空间组合:这类建筑一般设有大型的空间作为组合的中心,围绕大型空间布置服务性空间,并要求与大型空间,有比较密切的联系,是指构成完整的空间整体。
高层性的空间组合:交通组织上以垂直交通系统为主,结构体系上除考虑垂直受力的因素外,更重要的是考虑水平的风力及地震力的影响,所以要求高层建筑具备一定抵抗水平推力的刚度。常见的类型主要是板式和塔式高层。
综合性的空间组合:对于功能要求比较复杂的公共建筑设计,常采用综合形式的空间组合,才能满足要求。(简图略,案例详见公建原理P114-144)
3.试述实现工业化住宅的几种主要方式及其特点。
答:工业化住宅主要有:砌块建筑、大型壁板建筑、框架轻板建筑、盒子建筑、大规模建筑、滑模建筑等类型。
一、砌块住宅:小型砌块住宅与一般砖墙混合结构相似,而大、中型砌块住宅在设计上的不同在于如何使建筑墙体各部分尺寸适应砌块尺寸,以及如何满足构造上的要求,加强房屋的整体性。
二、装配式壁板住宅:是将各种构件如墙身、楼盖、屋盖等都在预制厂中做成大尺度的板材,然后运到工地,用机械化方法装配成房屋,简称大板住宅。
由于充分发挥了工厂化生产和现场机械化组装的优越性,便于成批和大规模生产,能进一步改善劳动条件,缩短工期,大大提高劳动生产率和加快建设速度。但大板住宅需要平整的施工场地,山地不宜采用。大板住宅的施工设备要求高,需要大型机械吊装设备,其建设造价也较高。
三、大模板住宅:是用定型的大面积模板在现场浇注混凝土墙体的住宅。这种工具式模板用钢板、胶合板或塑料等材料作面层,可重复使用多次,苏旭设备简单,整体性好,而且方便施工。国内外大模板就其组合的灵活性分,有:整体式大模板;拼装式大模板和整体式大模板两种。大模板住宅的类型有:1.内外墙全部采用 大模板现浇的方式;2.“一模三板”或“内浇外挂”的方式。3.外砖墙内大模现浇的方式。
四、框架轻板住宅:以框架受力,内外墙采用不承重的轻质板材,悬挂或支撑在结构框架或楼板上,所以轻板也称挂板或幕墙,仅起围护和分隔作用。框架轻板住宅就其结构体系分,有梁板柱结构与板柱结构两种。(本题在住宅原理P231-246)
4.论述(30分)(该题答案为个人理解所答,仅供参考)
1.柯布西耶在《走向新建筑》一书中认为:“建筑艺术的元素主要是光和影、墙和空间”,理解这句话的含义。
答:该句话的含义指的是:光影、墙体和空间的构成分别在建筑艺术的实现中起着重要作用。
光在建筑中的作用为:
1.光是创造空间主题的重要素材和重要手段。
光是环境、空间中一切活动存在与进行的先决条件。没有光,空间将淹没在一片黑暗之中。光也是塑造空间不可缺少的因素,光作为丰富多变的建筑素材,表现出极强的可塑性,它赋予了空间以不同层次的交互作用,因而丰富了空间内外的知觉深度。光使空间产生了变化,形成一种不确定的状态。光使人感觉和实存之间产生了一种暂时性的联系,也就是说,光参加了空间的创造和再组织。
2.光塑造空间主从关系。
运用人的向光性,即人的注意力总是被视野中亮度极大的部分所吸引的特性,来塑造空间的主从关系,而在空间艺术设计中,空间最有趣味和最需要强调的部分,我们就采用与周围环境对比较大的亮度,使之成为众矢之“的”,因此利用光可以在空间中形成视觉的中心,或是视觉趣味中心。当室内具有多种活动空间时,为了使使用者能够自由地选择所需要的集中点,并且能使他的注意力集中于该活动中心而不分心。即:使实体空间在尺度、位置、色彩等方面有明显的主从关系,为了不使造成某一活动空间处于支配地位,可以用光设计来改变空间原有的主从关系,如展览馆特色艺术品的展览空间的光照设计。
3.光创造动与静态的虚实空间。
视觉空间从某种意义上而言,是光空间与实体空间融合或者叠合的结果。人们感知的空间是光与实体共同作用形成的。它与实体空间或是连接、或是延伸、或是对比,这些非实体空间是不依赖实体物质的空间的,也可以使静止的实体间形成动态的流动空间。在没有任何预先设定的物质限定和围合的情况下,还可以创造出新的视觉空间,随着光源的移动使空间产生流动变化。运用光的可控性与可塑性,可以创造出多变的假定性空间与气氛。如在舞台上用来跟踪演员的追逐灯,在视觉上创造了有边界的区域,形成了强烈的中心效果。相反,观众席则隐匿在黑暗区域中,明与暗使同一空间中表演区域与观众区的空间做了明确的界定,但又不妨碍双方视线和感情上的交流。在这里,光所创造的是一个非实体的
心理领域,一个以光源为中心的动静鲜明的虚空间。
4.光塑造空间尺度与知觉深度
运用光照设计可以增强或减弱空间的知觉深度和层次。实体空间的大小、距离、位置等尺度造成了视觉的深度感,但是物体的亮度梯度、肌理梯度是知觉深度重要因素,其中光的亮度梯度是关键因素。当自然光从空间的采光口射近来的时候,亮度显出平缓的线形梯度,渐渐由亮到暗,由远到近,使人感知空间,利用这一现象,人工采光也可以有深度用以强化物体构成的空间知觉深度;当光的投射角度、方向、色彩变化时,空间的亮度梯度起了变化,空间的深度感也随之变化;当亮度梯度时断时续时,则会产生空间方向的跳跃。如果人工光照使空间没有亮度梯度,会使空间失去深度感,当彻底消除空间每一条黑暗时,空间也就彻底失去了深度和层次,失去光明与黑暗的交融美和对比衬托美,变成没有层次的空间。这样的空间意味着死亡,同样的亮度梯度也是指引人们识别空间次序和流动的重要元素。
5.光揭示空间材质特性
光是一种空间创作的材料,但是光更能揭示或改变构成实体空间的各种材料的肌理、表情,从而影响空间的表情,肌理的变化是空间处理的一种常用手法。因为物体表面的材料总是反射着光或被光照射着,所以说我们是用光来“雕刻”他们的表情的。如抛光的金属板对光就非常敏感,它随着光源的变化而迅速变化,并伶俐地对周围环境做出反映。金属的反射与映射、眩光与泛光交汇在一起,给人虚幻、缭乱及迷离的超现实效果。一个设计师为了提高空间的品质不能仅仅依赖在豪华的材料上,而忽略了光对材料肌理、表情的作用,如果把光作为一种有效的材料来配合,则材料会具有超过其材料本身的有效价值,使空间的目的的意义能够得到升华。
6.光创造感情的空间
艺术设计者所要创造的“景”,应该是情感的空间,从某种意义上说,不包含情感的空间是不存在的,没有情感的空间就不存在艺术价值。人们在使用空间的同时,自觉与不自觉地与空间进行交流,情感空间的创造才是艺术的创造。光是创造情感空间、表现特殊情感的强有力的语言,在人们的生活空间里,经常需要庄重崇高、幽静神秘、清新安详、欢快奔放的各种情感空间。
墙体在建筑中的作用为:
1.形体塑造:建筑作品的“雕塑感”主要是指它的富有表现力的体积感,体量感。这种体积感、雕塑感的有无、好坏,归根结底是受到各种功能、技术条件和美学规律的约束,而这些约束和规律最终主要反映在占建筑物比例最大的墙面上。
2.空间的分隔与限定作用:墙体在空间的形成、格局、组织、划分和感观上的作用,即创造灵活、可变、流动的空间。“流动的空间”即一个建筑的内部空间,除了极少数该封闭的地方外,由若干不到顶,不交接,不形成封闭凹角的水平板片和竖向板片构成大小不同的空间,它们互相联系而又有所分隔,人们可以沿着一定流线在其中较自由地生活和活动,且随着视点的移动,不断交换着视觉效果——即所谓“流动空间”(flowing space)。
3.对建筑空间的引导作用:在建筑空间中可以对墙体运用光影、色彩、变形等手段使其对空间的方向性产生某种倾向和影响,起到创造动态空间,引导流线、突出主题等作用。
4.精神场所的塑造:各种建筑在满足人民所需要的物质功能的同时也在创造多种多样的意境,履行它的精神功能的职责。某些建筑甚至十分突出强调这种精神功能,产生所谓精神场所。现代主义、古典主义、折中主义等都十分强调建筑的精神功能,有的通过自身空间的变化,有的通过大量装饰来实现。墙在这其中扮演着重要角色。
空间在建筑中的作用为:
空间是建筑设计的主角,空间是实现功能的基本条件,空间是人类生存的基本保障,空间是建筑的目的。空间的类型有:①封闭空间:一个封闭的院落、房间等②开敞空间:天坛③半开敞空间:三面有墙的院落④过渡空间:交通、交流空间等。 空间组织的功能要求:应根据空间的使用特点,空间的使用程序,平面布局:遵循使用流程,功能关系图,合理的功能分区:将空间按不同的功能要求进行分类,并根据它们之间的密切程序加以划分,做到功能分区明确和联系方全,还应对其中的主与辅、内与外、闹与静、清与污等方面加以分析,使不同的功能要求都能得到合理的安排。
结合实例谈谈对建筑设计中比例与尺度的认识。
答: 比例是指两个图形或图形内部各局部要素与整体之间的相似和匀称的关系。形式诸要素之间的类似或相似是建筑物之间匀称和有比例感的基础。同时,比例也是韵律排列规律的表现。建筑物的功能要求和结构类型的力学性能总是决定着比例的性质和特点。如柱间距、跨度随着材料性能的不同而呈现出不同的表现。他们对比例的表现力有着决定性的影响。总之,比例的作用可以使构图获得和谐。所谓美的比例,它必然是正确地体现出材料的力学特性和结构的合理性,反之,任何违反这种特性的比例关系都不可能引起人的美感。除此之外,不同民族由于自然条件、社会条件、民族文化传统的不同,往往也会创造出独特的比例行使而富于建筑以独特的风格,它们即使运用大体上相同的材料、结构,但形成的比例却也各有自己的特点。例如我国民居的屋顶坡度比例和英国中世纪建筑的屋顶坡度比例就相差悬殊。希腊神庙的山花比例和意大利罗马风时期建筑的山花比例也相差悬殊。
尺度指的是建筑物的整体或局部与人之间在度量上的制约关系。这两者如果统一,建筑形象就可以正确反映建筑物的真实大小,如果不统一,建筑形象就会歪曲建筑物的真实大小,例如会出现大而不见其大或小题大做等情况。尺度作为建筑设计和构图的基本手段之一,用来表现建筑形式、体谅和规模的宏大程度。尺度同比例的作用一样,是建立在两个因素之间的比较和衡量关系之中的。比例关系从属于数量定义,而尺度则是一个质量概念,它设计建筑的主题(纪念性与非纪念性、居住于公共等)。同时它还涉及纯数量关系之外的形式力度感,如强弱、大小、轻重等。此外还涉及由于位置和环境的关系而要求建筑的形象性和象征性等正在主观、客观上的满足等。绝度比例小的建筑业可能有大的尺度,如陵墓。而大的建筑物尺度却可能很小(如多层住宅)。因此,实际体积相同的建筑物由于所处环境、位置和使用性质的不同而可能产生不同的尺度表现。建筑师可以通过不变要素如:栏杆、阳台、门、室内家具来显示建筑物尺度。
总之,比例的运用追求的是一种形状相似的和谐,而尺度的运用则追求一种“相称”的和谐,即与人们的知识、经验和期望相称。
规划原理部分:
1.名词解释:(12分)
1.城市综合体:“城市综合体”就是将城市中的商业、办公、居住、旅店、展览、餐饮、会议、文娱和交通等城市生活空间的三项以上进行组合,并在各部分间建立一种相互依存、相互助益的能动关系,从而形成一个多功能、高效率的综合体。
2.控制性详细规划:以城市总体规划或分区规划为依据,确定建设地区的土地使用性质和使用强度的控制指标、道路和工程管线控制性位置以及空间环境控制的规划要求。
3.卫星城。在大城市市区外围兴建的、与市区既有一定距离又相互间密切联系的城市。它是一个经济上、社会上、文化上具有现代城市性质的独立城市单位,但同时又是从属于某个大的城市的派生产物。
2.简答题:(8分)
1.简述明清北京城的规划特点。
答:明清北京城的布局具有封建社会后期城市布局的典型两重性:一方面,作为都城,上层建筑部分,如城制、宫殿、官署、官方宗教文化设施等要求按照传统的宗法礼制思想进行布局,记成发扬了历代都城规划的传统,成为我过城市传统规划建设的典型代表。另一方面,随着城市人口的增长和商业活动的繁荣,反映城市人口的增长和商业活动的繁荣,反映城市居民生活方面的建设布局,如:府邸、民居、商业市肆、会馆、园林、民间宗教建筑等却注重因地制宜,具有自发形成的提点,表现出较大的灵活性。
布局上:恢复传统的宗法礼制思想,继承了历代都城规划的传统。城市分为京城、皇城、宫城三重,整个都城以宫城为中心。完全符合左祖右社、前朝后市的传统城制。
布局艺术方面:重点突出、主次分明,运用了强调中轴线的手法,造成了宏伟壮丽的景象。从外城南门永定门直至钟鼓楼构成了长达8公里的中轴线,显示了封建帝王至高无上的权势。
交通上:街道基本是元大都的基础。因为皇城居中,把城市分成东西两个部分,给城市交通带来了不便。城内主干道是宫城前至永定门的中轴线以及通往各城门的一段大街。在街区内部,以胡同为内部联系道路,有利于形成安静的生活环境。
居住区上:明共划5城37坊,但只是城市用地管理上的划分,不是坊里制。明末人口已近百万,清代超过百万。
商业市肆上:明清北京城的城市商业较为繁荣,明代在正阳门外的大街、东西河沿岸形成自发的商业区,因此街道布局既不规整。同时也形成集中的商业区。清代商业进一步发展,正阳门外成为全城的商业中心。
城市园林绿化上:明代建设了西苑和景山公园,清代在西郊建三山五园(香山、万寿山、玉泉山、圆明园、畅春园、静宜园、静明园和颐和园)。
水系上:基本沿用元大都。(见中国城建史 p139-P142)
三:论述题:(10分)
试述住宅群体平面组合的基本形式及特点
答:平面组合的基本形式有:
1.行列布置:建筑按一定的朝向和合理间距成排布置的形式。
2.周边布置:建筑沿街坊或院落周边布置的方式。
3.混合式布置:为以上两种形式的组合。
4.自由式:建筑结合地形,在日照、通风要求的前提下,成组自由灵活地布置。
建筑构造部分:
1.判断:(10分)
1.建筑基础应埋在冰冻线下200mm. ( √ )
见构造教材P166-167,一般基础应争取埋在最高水位以上,当地下水位较高,基础不能埋在最高水位以上时,宜将基础底面埋置在最低地下水位以下200mm。
2.上下楼层有温差时,应在较冷侧设隔汽层。 ( × )
见P133和P13,有温差时应该在较热一侧设隔汽层。
3.屋顶防水分仓不应超过25㎡。 ( × )
见P121,分隔缝纵横间距不宜大于6M,因此防水分仓不应超过36㎡。
4.楼板隔墙较砖墙轻,隔音效果较好。 ( × )
见P16。砖墙隔音效果较好。
5.伸缩缝应在基顶以上断开,抗震缝应从基础底部断开。( × )
见P25-27,伸缩缝是从基础顶面开始断开,抗震缝一般仅在基础以上设置,只有当防震缝与沉降缝结合设置时,基础才断开。
2.构造画图:画出平屋顶刚性柔性防水各一,并加以说明。(10分).





