传统徽派建筑特色:
1规整的平面布局:徽州民居的平面布局基本方整,绝大多数都以围绕扁平长方形天井为基本单元,单元之中的房屋呈三面或四面围合,轴线取中,两厢对称。正房一般面阔三间,明间临天井。两侧辟有厢房,可住人或起到调节起居的作用。
2丰富的体形轮廓:徽州地区民居的屋面几乎都是双向坡顶,覆以青瓦,在附属房屋部分也间以宽窄不同的单向坡屋顶。山墙多数作成硬山封火山墙,墙头部分的造型丰富。从侧面或正面望去,高低起伏,长短相间,轮廓清晰。
3.简约的色彩:徽州民居粉墙黛瓦,色质简淡,仅存白与黑。白黑不偏不倚的中性和广大的包容性使它们与每一种颜色保持等距关系,和谐共处。白黑的介入能使参与复杂、纷繁以至激烈冲突的色彩组合的诸方抑制自己的色性,建立和谐、理性和秩序。这种黑白色彩,在青山绿水的映衬下,产生一种宁静、和谐的效果。
4.精巧的雕饰装修:徽州民居在装修雕饰上突出的地方性特色,是将架梁斧砍略带弧形,做成月梁。一般梁断面粗大,梁头部浅刻一条凹槽曲线,形似新月。另外窗扇的形式规整美观,
窗下的木雕镂刻栏板刻工精细。连续的排窗衬托在大片木墙之间,相互对比,显得格外精巧细致。外部的砖雕,无论是出现在门罩窗媚上,还是庭院隔墙上,刻工磨工都堪称艺术佳作。
5结构构造模式:徽州民居混合运用了干栏巢居的穿斗式与北方四合院的抬梁式结构,各取其长。这种混合木构架既满足了住宅使用空间功能划分又发挥了两种木构架的材料力学性能。室内隔墙用木板镶嵌在柱间。一般不作吊顶,楼层用搁栅楼板。
新徽派建筑举例:
黄山云谷山庄:该建筑位于黄山云谷寺索道附近,自然环境优美宁静。建筑充分结合山区地形,依山就势,错落起伏,与自然环境取得良好的协调。建筑群分为五个区域,围绕着数个庭院展开,其间松竹环抱,溪回九曲,层层跌落。建筑以传统的皖南民居风格为主,借鉴江南园林的一些形式,在周围自然环境的映衬下越发显出清新淡雅、朴素含蓄的地方特色。建筑室内外空间尺度亲切宜人,以二、三层为主,具有民居气氛,内敛而不张扬。在材料及色彩的运用上,延续皖南民居的粉墙青瓦,并运用地方性的竹、石、木与预制装饰构件相结合,对于徽派建筑的材料创新作了一些尝试。云谷山庄的创作力求使建筑布局、在建筑布局上,以低、散、小为基本构思,化集中为分散,使建筑水平延伸,充分融入自然环境中,同时,以自身生动灵巧的造型,宜人的尺度去衬托山势之雄奇。汪国瑜先生将“地方的习性色彩、民居建筑的风韵格调、园林空间的含蓄情趣以及山野朴实的自然气息”在这一建筑中融为一体。体量、造型与环境水乳交融,浑然一体。
徽州传统的地域建筑文化是在其特殊的地理坏境与人文坏境背景中发生、发展的,因而表现出对于地域内自然因素与社会文化诸因素的良好适应性。事实上,它体现了一种不同文化意识与价值观念在建筑这一物质形态上的外在表达。伴随着地域性的更新,传统地域的消失是无法挽留的现实。地域传统延续过程中的那种表面化倾向只能让地域一记忆变得肤浅、僵化。新徽派建筑应当从对地域性的关注中找到支撑,而这正是它得以坚实构筑的重要出发点。历史的发展表明:建筑文化以地域性为根,以时代性为本,它们相辅相成地为建筑文化的发展从不同方面提供营养。随着时代的跃迁而不断地发展和创新的地域建筑文化是最有生命力的,这是地域更新中徽州建筑文化的出路和未来。以此为背景,徽派建筑作为徽州文化的重要载体,它的发展必然与文化的创新息息相关。(本文摘自工大硕士生毕业论文《新徽派建筑研究》)
2010年
一名词解释:
1.防烟楼梯间:在每层楼梯间和主体建筑之间设置有专用防烟设施,能达到防烟目的的楼梯间。是用建筑构件分隔,能防止烟和热气进入的,在楼梯间入口处设有防烟前室,或设有专供排烟用的阳台、凹廊等,且通向前室和楼梯间的门均为乙级防火门的楼梯间。
(本题题目来源为工大的公建原理样卷,实际为防火规范内容。)
2.共享空间:“共享”指一种独特的行为方式,是一种心情。现代人群的“共享”主要指人与人的交往及人对客体的观照(交往和交流),即同时具有行为与思维的共享两种特征。以“共享”为场所特征的空间即可称为共享空间。共享空间应该具有两方面性质,一是场所的共享行为特征,二是场所界面的表情特征,两者共
同定义空间氛围。这种空间的基本特点归纳为(1) 根据人的心理需要,创造相应的空间环境(2) 室内外结合,自然与人工相结合。(3) 共性中有个性。(4)空间与时间的变化,动静结合。(5) 宏伟与亲切相结合。(本题为09年规划部分的名词解释题,出自环境心理学)
3.韵律:韵律诗一种以具有条理性、重复性和连续性为特征的美的形式。韵律美有几种不同的类型:1.连续的韵律;2.渐变的韵律;3.起伏的韵律;
4.交错的韵律。借助韵律,既可以加强整体的统一性,又可以求得丰富多彩的变化。(本题为建筑形式美的内容,答案出自空间组合论)
4.容积率:也称建筑毛密度,是每公顷居住区用地上拥有的各类建筑的建筑面积(平方米/HA)或以居住区总建筑面积(万平方米)与居住区用地(万平方米)的
比值表示。(出自城市规划规范)
5.场所精神:场所就是由自然环境和人造环境结合的有意义的整体。这个整体反映了在特定地段中人们的生活方式和自然的环境特征.“具有特殊风格及明确特征的空间”。场所是具有清晰特性的空间, 是由具体现象组成的生活世界. 场所是空间这个“形式”背后的“内容”。各种建筑在满足人民所需要的物质功能的同时也在创造多种多样的意境,履行它的精神功能的职责。某些建筑甚至十分突出强调这种精神功能,产生所谓精神场所。(本题直接来源出自工大公建原理
样卷,实际来源为建筑设计中的环境心理学内容。)
4.默图题:
1.密斯德国馆平面图简图。
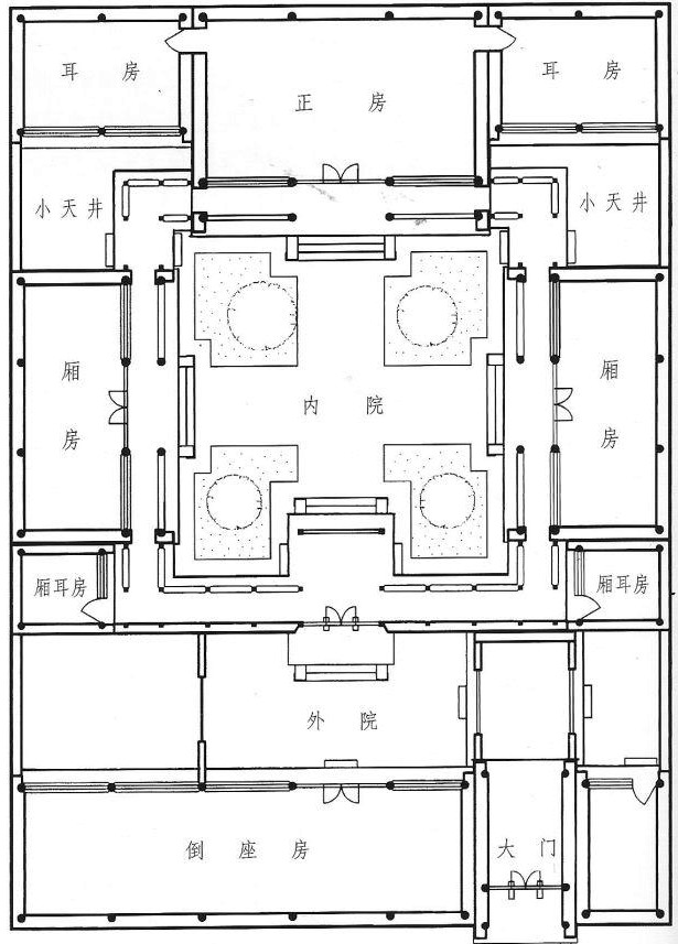
2.北京四合院平面图简图。

3.流水别墅透视图。
(六)简答:(要求辅以简图说明)
3、简述对比手法在建筑中的常见表现形态。
答: 建筑功能和技术赋予建筑以各种形式上的差异性。对比指的是要素之间的显着差异。对比可以借彼此之间的烘托陪衬来突出各自的特点以求得变化。对比的内容一般有体量之间、线型之间、虚实之间、质感之间以及色彩冷暖浓淡之间的对比灯。简图略。(本题出自公共建筑的造型艺术形式美部分,答案部分来自公建原理P82)
4、结合实例分析公共建筑设计中的空间组合方式。
答:公共建筑的空间组合方式有:
分隔性的空间组合:分隔性空间组合的特点是以交通空间为联系手段,组织各类房间,常称之为“走道式”建筑布局。走道式布置方式常用的有两种:意识走道在中间,联系两侧的房间,成为内廊式,二是走到位于一侧,联系单面的房间,成为外廊式。
观展类公共建筑:为了满足参观路线要求,在空间组合上多要求有一定的连续性。这种类型的空间布局,基于各种因素的影响,可归纳为五种基本形式:串联的空间组合形式、放射方式的空间组合形式、串联兼通道的空间组合形式、兼有放射和串联的空间组合形式、综合性大厅的空间组合形式。
观演性的空间组合:这类建筑一般设有大型的空间作为组合的中心,围绕大型空间布置服务性空间,并要求与大型空间,有比较密切的联系,是指构成完整的空间整体。
高层性的空间组合:交通组织上以垂直交通系统为主,结构体系上除考虑垂直受力的因素外,更重要的是考虑水平的风力及地震力的影响,所以要求高层建筑具备一定抵抗水平推力的刚度。常见的类型主要是板式和塔式高层。
综合性的空间组合:对于功能要求比较复杂的公共建筑设计,常采用综合形式的空间组合,才能满足要求。(简图略,案例详见公建原理P114-144)
4、试述实现工业化住宅的几种主要方式及其特点。
答:工业化住宅主要有:砌块建筑、大型壁板建筑、框架轻板建筑、盒子建筑、大规模建筑、滑模建筑等类型。
一、砌块住宅:小型砌块住宅与一般砖墙混合结构相似,而大、中型砌块住宅在设计上的不同在于如何使建筑墙体各部分尺寸适应砌块尺寸,以及如何满足构造
上的要求,加强房屋的整体性。
二、装配式壁板住宅:是将各种构件如墙身、楼盖、屋盖等都在预制厂中做成大尺度的板材,然后运到工地,用机械化方法装配成房屋,简称大板住宅。
由于充分发挥了工厂化生产和现场机械化组装的优越性,便于成批和大规模生产,能进一步改善劳动条件,缩短工期,大大提高劳动生产率和加快建设速度。但大板住宅需要平整的施工场地,山地不宜采用。大板住宅的施工设备要求高,需要大型机械吊装设备,其建设造价也较高。
三、大模板住宅:是用定型的大面积模板在现场浇注混凝土墙体的住宅。这种工具式模板用钢板、胶合板或塑料等材料作面层,可重复使用多次,苏旭设备简单,整体性好,而且方便施工。国内外大模板就其组合的灵活性分,有:整体式大模板;拼装式大模板和整体式大模板两种。大模板住宅的类型有:1.内外墙全部采用大模板现浇的方式;2.“一模三板”或“内浇外挂”的方式。3.外砖墙内大模现浇的方式。
四、框架轻板住宅:以框架受力,内外墙采用不承重的轻质板材,悬挂或支撑在结构框架或楼板上,所以轻板也称挂板或幕墙,仅起围护和分隔作用。框架轻板住宅就其结构体系分,有梁板柱结构与板柱结构两种。(本题在住宅原理P231-246)
四.论述(30分)(该题答案为个人理解所答,仅供参考)
1.柯布西耶在《走向新建筑》一书中认为:“建筑艺术的元素主要是光和影、墙和空间”,理解这句话的含义。
答:该句话的含义指的是:光影、墙体和空间的构成分别在建筑艺术的实现中起着重要作用。
光在建筑中的作用为:
1.光是创造空间主题的重要素材和重要手段。
光是环境、空间中一切活动存在与进行的先决条件。没有光,空间将淹没在一片黑暗之中。光也是塑造空间不可缺少的因素,光作为丰富多变的建筑素材,表现出极强的可塑性,它赋予了空间以不同层次的交互作用,因而丰富了空间内外的知觉深度。光使空间产生了变化,形成一种不确定的状态。光使人感觉和实存之间产生了一种暂时性的联系,也就是说,光参加了空间的创造和再组织。2.光塑造空间主从关系。
运用人的向光性,即人的注意力总是被视野中亮度极大的部分所吸引的特性,来塑造空间的主从关系,而在空间艺术设计中,空间最有趣味和最需要强调的部分,我们就采用与周围环境对比较大的亮度,使之成为众矢之“的”,因此利用光可以在空间中形成视觉的中心,或是视觉趣味中心。当室内具有多种活动空间时,为了使使用者能够自由地选择所需要的集中点,并且能使他的注意力集中于该活动中心而不分心。即:使实体空间在尺度、位置、色彩等方面有明显的主从关系,为了不使造成某一活动空间处于支配地位,可以用光设计来改变空间原有的主从关系,如展览馆特色艺术品的展览空间的光照设计。
3.光创造动与静态的虚实空间。
视觉空间从某种意义上而言,是光空间与实体空间融合或者叠合的结果。人们感知的空间是光与实体共同作用形成的。它与实体空间或是连接、或是延伸、或是对比,这些非实体空间是不依赖实体物质的空间的,也可以使静止的实体间形成动态的流动空间。在没有任何预先设定的物质限定和围合的情况下,还可以创造出新的视觉空间,随着光源的移动使空间产生流动变化。运用光的可控性与
可塑性,可以创造出多变的假定性空间与气氛。如在舞台上用来跟踪演员的追逐灯,在视觉上创造了有边界的区域,形成了强烈的中心效果。相反,观众席则隐匿在黑暗区域中,明与暗使同一空间中表演区域与观众区的空间做了明确的界定,但又不妨碍双方视线和感情上的交流。在这里,光所创造的是一个非实体的心理领域,一个以光源为中心的动静鲜明的虚空间。



